Продается дом, 2200 кв.м, с участком 56 соток, ID 17984

Коттеджный поселок «Агаларов Эстэйт»
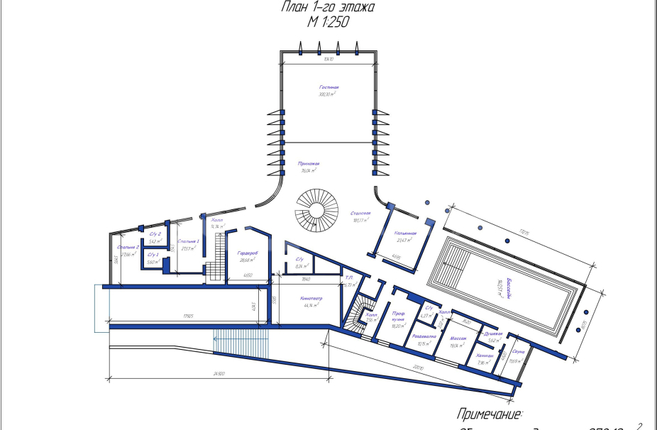
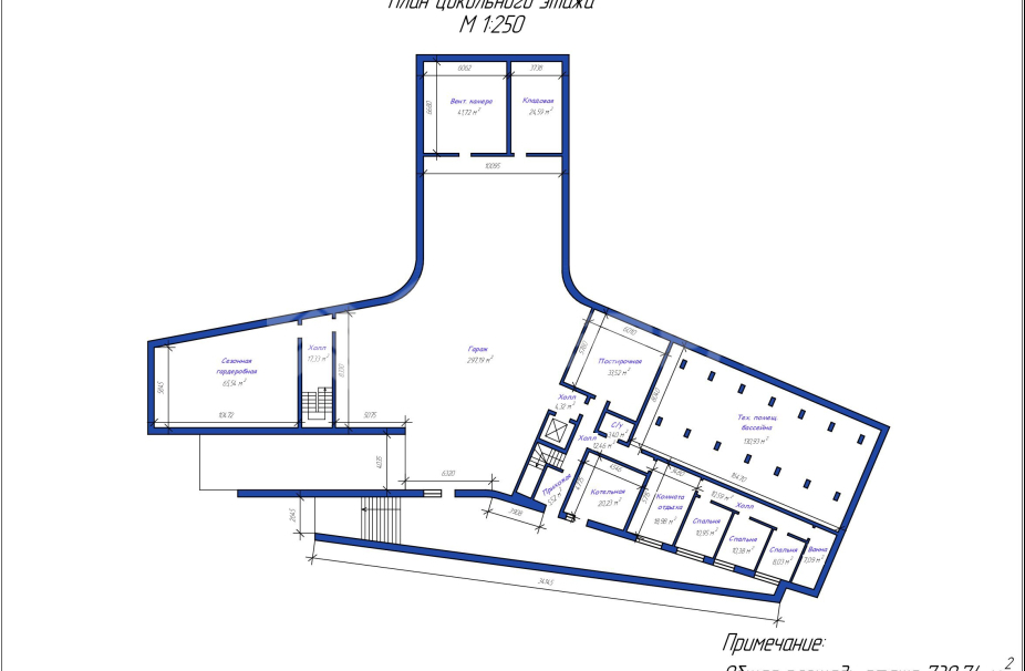
  • гараж 5-6 м/м с комнатой для хранения
  • 3-х комнатная квартира для пероснала с отдельным входом
  • сезонная гардеробная
  • котельная
  • техпомщенеие под бассейном
  • холл
  • просторная гардеробная
  • гостиная со вторым светом
  • зона кухни-столовой
  • рабочая кухня
  • кальянная
  • с/у гостевой
  • 2 гостевых спальни с с/у
  • кинозал
  • СПА-зона: бассейн 15м, массажная, хамам, сауна, душевая, с/у
  • холл
  • мастер-блок: спальня, две просторные гардеробные, ванная комната, спортивный зал, выход на просторную террасу-патио
  • блок: 4 спальни со своими с/у и гардеробными
Описание

Уникальный объект в сегменте недвижимости класса DeLuxe. Впечатляющий проект известного архитектора.
К продаже предлагается эффектная вилла 2200 кв. м., в которой выразительная современная архитектура сочетается с идеально продуманным пространством для жизни семьи. Дом расположен на большом участке 56 соток, который примыкает к живописному озеру в самой широкой его части, позволяя любоваться шикарной живописной панорамой из окон.
В доме спланированы: Гостиная 300 кв.м. со 2-м светом и потолками 8 метров, 2 кухни - хозяйская и рабочая. Бассейн 15 м с видом на озеро. 7 спален с с/у и гардеробными, в том числе Мастер-блок около 200 метров с роскошными видами. Гараж на 7 м/м. Кинотеатр, кальянная, массажная. Большая квартира для персонала с панорамными окнами. Вилла находится в состоянии «под чистовую отделку».
Резиденции "Агаларов Эстейт" - безупречный в стилистическом отношении, комфортабельный элитный коттеджный поселок. Территория поселка площадью более 300 га включает в себя профессиональное поле для гольфа на 18 лунок, что безусловно является главной изюминкой комплекса. Поселок Agalarov Estate – это 260 резиденций, расположившихся среди тихих озер и безмятежных просторов, где расположены гольф-клуб с рестораном Club House и хьюмидорными комнатами, ресторан Beach Club с причалом для лодок и катеров, многофункциональный спортивный комплекс площадью 5 тыс. кв. м c шестью теннисными кортами, футбольным полем, спортзалом и боулингом, отель Hotel & Spa, где оборудован каминный зал и работает ресторан итальянской кухни, Spa Sabun Nga с индивидуальными SPA-программами, детский английский клуб, вертолетная площадка, консьерж-служба.

Участок и коммуникации
Удаленность от МКАД
26 км
Площадь участка
56 соток
Деревья
Крупномеры
Ландшафтные работы
Отсутствуют
Водопровод
Централизовано
Канализация
Централизовано
Газ
Есть

Описание места

880 000 000
26 км от МКАД, Новорижское шоссе
Участок
56 соток
Площадь дома
2200 м2 (Под отделку)
Материал
Монолит
Спальни
7 шт.
Санузел
9 шт.
Гараж
на 7 автомобилей
Водопровод
Централизовано
Канализация
Централизовано
Газ
Есть
Деревья
Крупномеры
Более подробную информацию можно узнать по телефону
+7 (495) 788 77 88
Похожие предложения
$ 6 500 000
ID 9500
Дом
Поселок: Агаларов Эстэйт
26 км от МКАД, Новорижское
Участок
57 соток
Площадь
1147 м2
По запросу
ID 9501
Дом
Поселок: Агаларов Эстэйт
26 км от МКАД, Новорижское
Участок
81 соток
Площадь
2284 м2
По запросу
ID 9502
Дом
Поселок: Агаларов Эстэйт
26 км от МКАД, Новорижское
Участок
62 соток
Площадь
2280 м2
По запросу
ID 14117
Дом
Поселок: Агаларов Эстэйт
26 км от МКАД, Новорижское
Участок
58 соток
Площадь
1408 м2
По запросу
ID 10313
Дом
Поселок: Агаларов Эстэйт
26 км от МКАД, Новорижское
Участок
127 соток
Площадь
4022 м2
Спальни
3 Шт.
$ 13 500 000
ID 16637
Дом
Поселок: Агаларов Эстэйт
26 км от МКАД, Новорижское
Участок
94 соток
Площадь
1740 м2
Спальни
6 Шт.
лимит символов – 500
Раздел
Тип сделки
лимит символов – 500