Продается дом, 850 кв.м, с участком 22 соток, ID 19028

Коттеджный поселок «Ромашково 21»
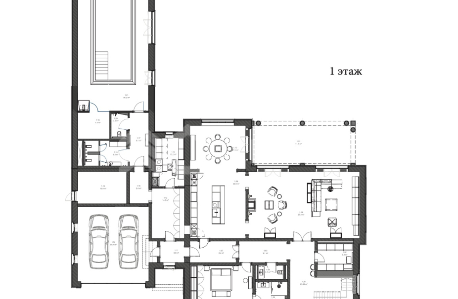
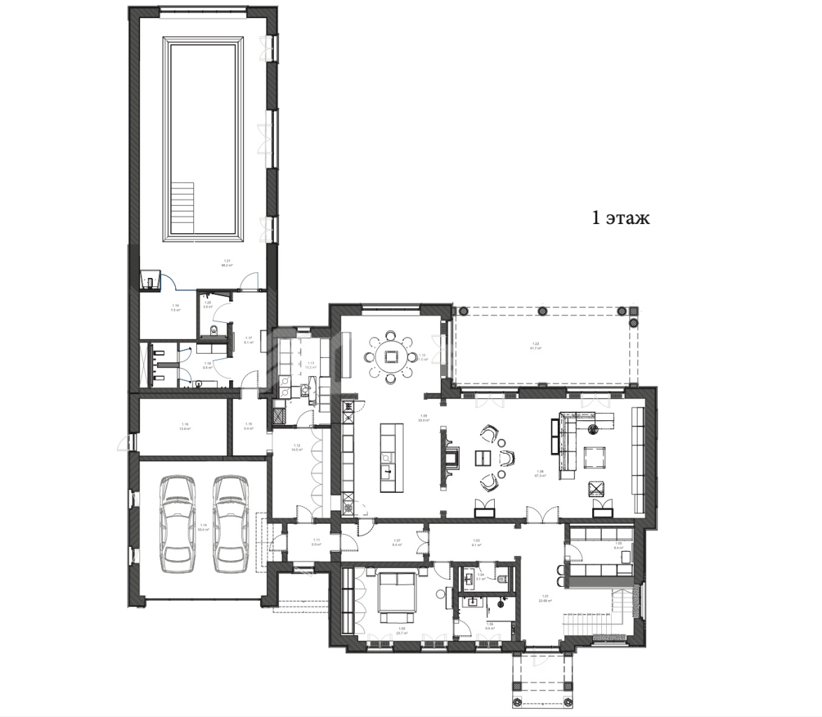
  • прихожая
  • холл
  • кухня
  • столовая
  • гостиная с камином
  • выход на террасу
  • гостевая спальня с с/у
  • СПА-зона с бассейном
  • постирочная
  • с/у гостевой
  • гардеробная
  • гараж на 2 м/м
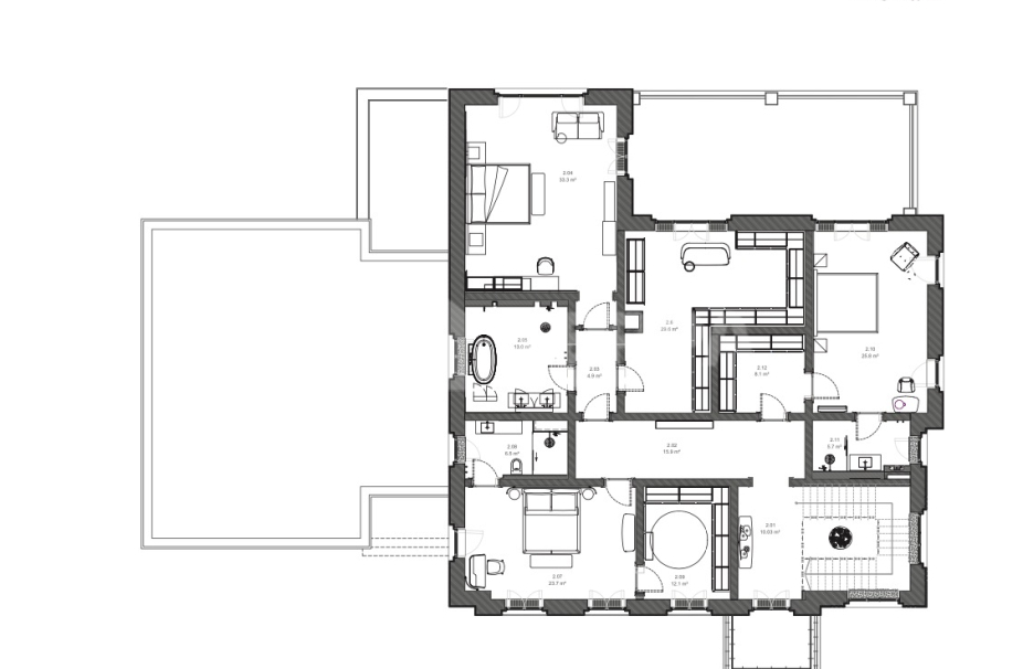
  • мастер-спальня с просторной гардеробной и ванной комнатой
  • 2 спальни со своими с/у и гардеробными
Участок и коммуникации
Поселок
Удаленность от МКАД
5 км
Площадь участка
22 сотки
Деревья
Отсутствуют
Ландшафтные работы
Средние
Водопровод
Централизовано
Канализация
Централизовано
Газ
Есть
15 000 000
1 379 770 500 ₽
Участок
22 сотки
Площадь дома
850 м2 (Под ключ)
Материал
Кирпич
Спальни
4 шт.
Санузел
5 шт.
Гараж
на 2 автомобиля
Водопровод
Централизовано
Канализация
Централизовано
Газ
Есть
Деревья
Отсутствуют
Более подробную информацию можно узнать по телефону
+7 (495) 788 77 88
Похожие предложения
1 535 000 000 ₽
ID 18924
Дом
Поселок: Ромашково 21
5 км от МКАД, Рублево-Успенское
Участок
26 соток
Площадь
1500 м2
Спальни
5 Шт.
лимит символов – 500
Раздел
Тип сделки
лимит символов – 500