Продается дом, 1500 кв.м, с участком 26 соток, ID 18924

Коттеджный поселок «Ромашково 21»
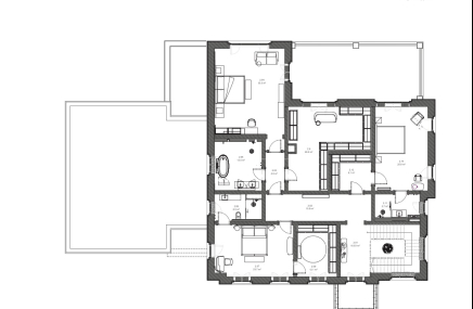
  • инженерное помещение
  • венткамера
  • постирочная
  • санузел
  • гостиная-кухня-столовая
  • рабочая кухня
  • спальня с санузлом
  • гардеробная
  • 2 кладовые
  • санузел
  • котельная
  • СПА блок: бассейн, 2 комнаты отдыха, 2 душевые, хаммам, санузел
  • гараж
  • мастер блок: спальня, гардеробная, санузел
  • терраса
  • мастер блок: спальня, гардеробная, санузел
  • балкон
  • 2 мастер блока: спальня, гардеробная, санузел
  • кабинет
  • кладовая
  • санузел
Описание

Предлагаем вашему вниманию изысканный особняк премиум-класса в закрытом клубном поселении «Ромашково 21».
Основной жилой дом общей площадью 1500 квадратных метров расположен на благоустроенном земельном участке размером 26.11 соток. Отдельно стоящий комфортабельный домик для обслуживающего персонала площадью 85 кв.м (кухня, 2 спальни с санузлами). Закрытый гараж на две машины. Особенность внутреннего пространства: пять жилых комнат, предусмотрена возможность обустройства шестой спальни, а также наличие восьми санузлов. SPA зона с бассейном. Интеллектуальные решения умного дома, качественная приточно-вытяжная вентиляция бренда Breezart, эффективное кондиционирование Daikin и увлажняющая установка Buhler-AHS. Подогреваемые полы на террассах и крыльце, панорамные окна из качественного профиля Schuco. Высокими потолками: первый этаж — 3.8 метра, второй этаж — 3.6 метра. Функциональная инженерия представлена современной котельной на оборудовании брендов Wolf, Oventrop и DAB.
Ромашково-21 отличается уникальной атмосферой тихого семейного уюта и презентабельностью: всего тридцать избранных собственников объединены общим элегантным архитектурным решением. Неподалёку расположены живописные парковые зоны имени Малевича и Раздолье. Благодаря удобной транспортной развязке обеспечивается быстрый доступ к основным магистралям региона.

Участок и коммуникации
Поселок
Удаленность от МКАД
5 км
Площадь участка
26 соток
Деревья
Крупномеры
Ландшафтные работы
Дорогие
Водопровод
Централизовано
Канализация
Централизовано
Газ
Есть
1 535 000 000
Участок
26 соток
Площадь дома
1500 м2 (Под отделку)
Спальни
5 шт.
Санузел
8 шт.
Гараж
на 2 автомобиля
Водопровод
Централизовано
Канализация
Централизовано
Газ
Есть
Деревья
Крупномеры
Более подробную информацию можно узнать по телефону
+7 (495) 788 77 88
Похожие предложения
68 444 200 ₽
ID 2752
Дом
Поселок: Лесной Простор-3
21 км от МКАД, Рублево-Успенское
Участок
17 соток
Площадь
410 м2
Спальни
3 Шт.
По запросу
ID 5058
Участок
34 соток
Площадь
600 м2
Спальни
4 Шт.
100 000 000 ₽
ID 5326
Дом
Поселок: Пруды НП
17 км от МКАД, Рублево-Успенское
Участок
15 соток
Площадь
340 м2
Спальни
3 Шт.
$ 2 260 000
ID 5560
Дом
Поселок: Надежда ДНТ
28 км от МКАД, Рублево-Успенское
Участок
44 соток
Площадь
800 м2
Спальни
3 Шт.
$ 3 600 000
ID 6288
Дом
Поселок: Шульгино
7 км от МКАД, Рублево-Успенское
Участок
24 соток
Площадь
1207 м2
Спальни
5 Шт.
$ 2 200 000
ID 6332
Дом
Поселок: Подушкино ТСЖ
8 км от МКАД, Рублево-Успенское
Участок
13 соток
Площадь
800 м2
Спальни
4 Шт.
лимит символов – 500
Раздел
Тип сделки
лимит символов – 500