Продается дом, 307 кв.м, с участком 7 соток, ID 18473

Коттеджный поселок «Миллениум парк»
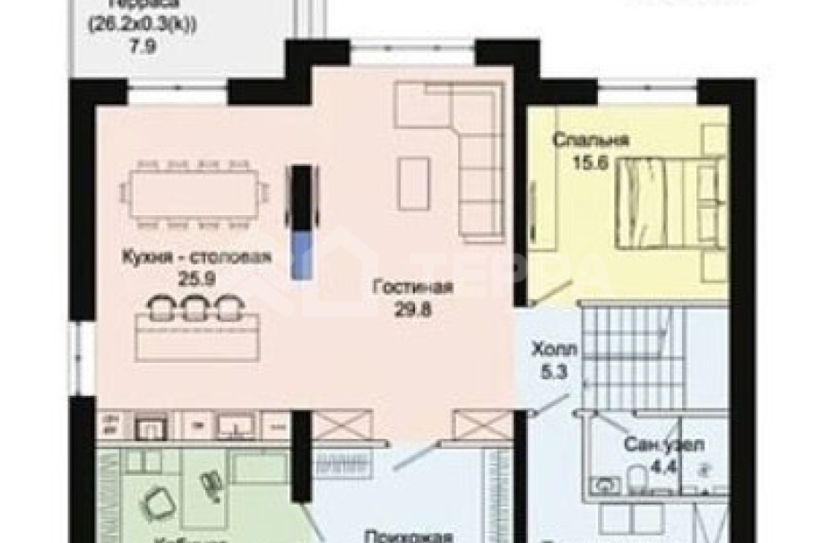
  • гостиная
  • кухня-столовая с выходом на террасу
  • кабинет
  • кладовая
  • гостевой туалет
  • котельная-постирочная
  • холл
  • Мастер блок: спальня, гардеробная, терраса
  • спальня с террасой
  • спальня
  • ванная комната
  • холл
Описание

Двухэтажный коттедж 276,4 кв.м по проекту «Мини Римини» в КП Миллениум Парк.
Это современный дом в стиле Райта, с удобной планировкой, высокими потолками 3,3 м и большими панорамными окнами, которые зрительно увеличивают пространство, наполняя помещения естественным светом. На 2 х этажах есть все необходимое: 3 террасы для отдыха и балкон, просторный холл, гостиная, кухня-столовая, кабинет, гардеробная, котельная, 4 спальни и 3 санузла.
Дом строится на участке размером 7,29 соток. По периметру будут высажены кустарники и деревья, на основной часть придомовой территории будет газон.
Здесь Вы сможете реализовать свои идеи по благоустройству. Внешняя отделка дома будет выполнена премиальными материалами в светлых и коричневых тонах: натуральный песчаник, планкен, цементно-песчаная черепица.
Дом построен в новом 8-м квартале КП Миллениум Парк – в приватной части новой зоны застройки. Квартал новой очереди расположен в пяти минутах прогулки до парковых ансамблей и рукотворных каналов поселка. Их уникальный ландшафт образует ботаническая коллекция из лучших европейских и российских питомников. В ней собрано порядка 6000 лиственных деревьев, 200 бонсаев, сотни цветов и десятки растений, образующих живые изгороди.

Участок и коммуникации
Удаленность от МКАД
19 км
Площадь участка
7 соток
Деревья
Отсутствуют
Гараж
Отсутствует
Ландшафтные работы
Отсутствуют
Водопровод
Централизовано
Канализация
Централизовано
Газ
Есть
Электричество
15 кВт.

Описание места

110 000 000
19 км от МКАД, Новорижское шоссе
Участок
7 соток
Площадь дома
307 м2 (Под отделку)
Материал
Кирпич
Спальни
4 шт.
Санузел
3 шт.
Гараж
Отсутствует
Водопровод
Централизовано
Канализация
Централизовано
Газ
Есть
Деревья
Отсутствуют
Более подробную информацию можно узнать по телефону
+7 (495) 788 77 88
Похожие предложения
275 000 000 ₽
ID 16439
Дом
Поселок: Миллениум парк
19 км от МКАД, Новорижское
Участок
28 соток
Площадь
780 м2
Спальни
4 Шт.
$ 8 000 000
ID 17006
Дом
Поселок: Миллениум парк
19 км от МКАД, Новорижское
Участок
31 соток
Площадь
800 м2
Спальни
5 Шт.
750 000 000 ₽
ID 16509
Дом
Поселок: Миллениум парк
19 км от МКАД, Новорижское
Участок
23 соток
Площадь
961 м2
Спальни
5 Шт.
$ 5 700 000
ID 16549
Дом
Поселок: Миллениум парк
19 км от МКАД, Новорижское
Участок
25 соток
Площадь
900 м2
Спальни
5 Шт.
450 000 000 ₽
ID 17278
Дом
Поселок: Миллениум парк
19 км от МКАД, Новорижское
Участок
25 соток
Площадь
990 м2
Спальни
6 Шт.
565 000 000 ₽
ID 17576
Дом
Поселок: Миллениум парк
19 км от МКАД, Новорижское
Участок
19 соток
Площадь
1200 м2
Спальни
5 Шт.
лимит символов – 500
Раздел
Тип сделки
лимит символов – 500