Продается дом, 603 кв.м, с участком 15 соток, ID 18905

Коттеджный поселок «LES Маслово»
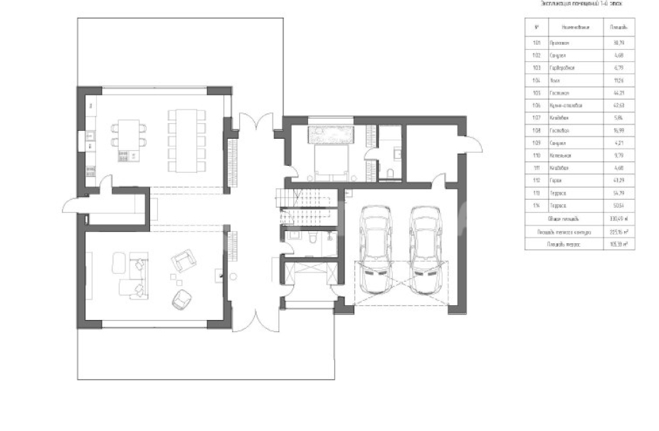
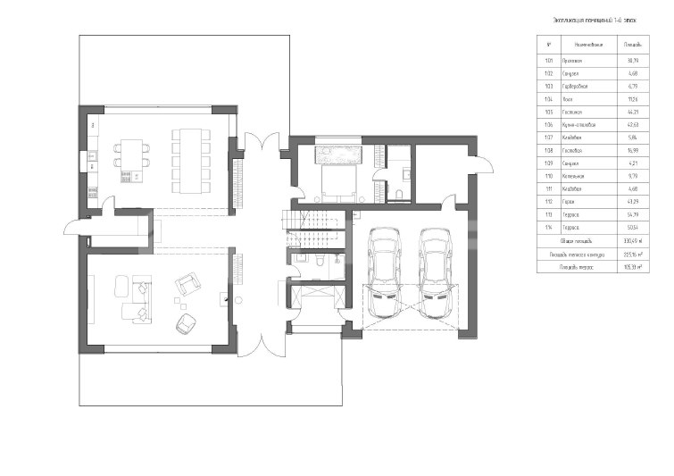
  • гостиная
  • кухня-столовая
  • спальня
  • 2 санузла
  • прихожая с гардеробом
  • 2 кладовые
  • 2 террасы
  • гараж
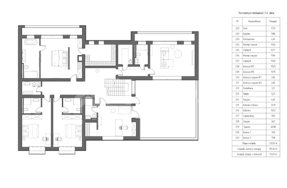
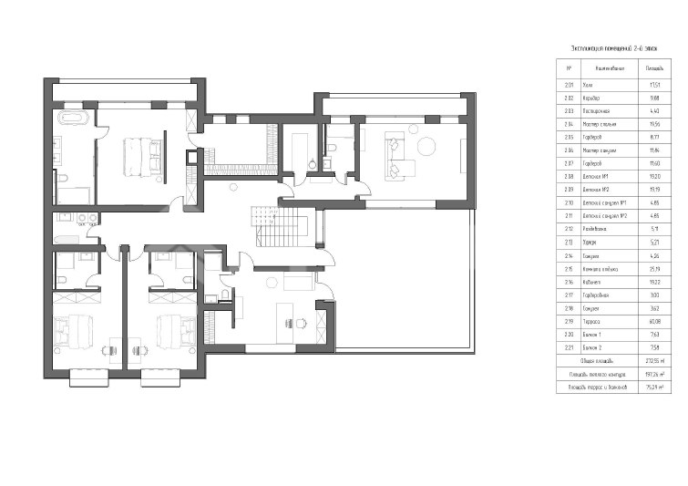
  • мастер блок: спальня, гардеробная, ванная комната
  • 2 спальни с санузлами
  • 2 санузла
  • хамам
  • комната отдыха
  • кабинет
  • терраса
Описание

Идеальный вариант для большой семьи, которая хочет максимально эффективно использовать своё жилое пространство.
На первом этаже расположены гостиная с зоной отдыха, кухня-столовая, гостевая спальня, 2 санузла, прихожая с гардеробом, 2 кладовые, выход к двум террасам площадью 105 м?. Гараж на два автомобиля. На втором этаже вас ждут мастер-спальня с ванной и гардеробной, 2 детские спальни с санузлами, 2 гостевых санузла, хамам, комната отдыха, кабинет, терраса площадью 60 м?.
Фундамент дома из утеплённой шведской плиты, технологичный монолитный фундамент с встроенными коммуникациями и тёплым водяным полом по всей площади первого этажа, перекрытия монолитные, стены из теплой керамики фирмы Porotherm, высота потолков 3,2 метра в зоне гостиной и кухни-столовой, 3 метра во всех остальных помещениях. Оконные и дверные системы из алюминия. Установлена приточно-вытяжная вентиляция. Фасады дома из натурального известняка, кровля состоит из мембраны ПВХ.
Камерный мини-поселок на 12 домов расположился в уникальном сосновом лесу, в окружении природного заказника «Масловская лесная дача», в самом известном стародачном месте, отличающемся красивейшей природой и экологией - Николина гора, деревня Маслово.
Поселок соседствует с санаторием Маслово, и расположен в уникальном месте – с 3-х сторон окружен сосновым бором, входящим в особо охраняемый природный резерват площадью 2000 Га «Масловская лесная дача». На территории природного заказника преобладает преимущественно сосновые леса, где произрастают растения, занесенные в Красную книгу, и живут редкие виды птиц. Поэтому при проектировании поселка мы старались сохранить максимальное количество деревьев (сосен).

Участок и коммуникации
Поселок
Удаленность от МКАД
25 км
Площадь участка
15 соток
Деревья
Лесные
Ландшафтные работы
Средние
Водопровод
Централизовано
Канализация
Централизовано
Газ
Есть

Описание места

450 000 000
Участок
15 соток
Площадь дома
603 м2 (Под ключ)
Гараж
на 2 автомобиля
Водопровод
Централизовано
Канализация
Централизовано
Газ
Есть
Деревья
Лесные
Более подробную информацию можно узнать по телефону
+7 (495) 788 77 88
Похожие предложения
143 000 000 ₽
ID 18768
Дом
Поселок: LES Маслово
25 км от МКАД, Рублево-Успенское
Участок
16 соток
Площадь
673 м2
Спальни
4 Шт.
лимит символов – 500
Раздел
Тип сделки
лимит символов – 500