Продается дом, 450 кв.м, с участком 13 соток, ID 16659

Коттеджный поселок «Горки Лэйк»
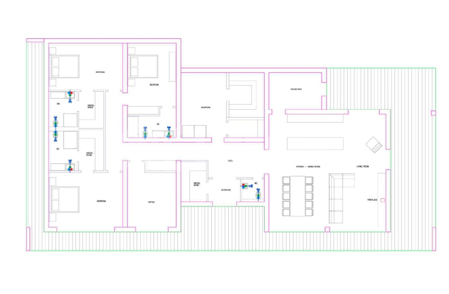
  • кухня-столовая-гостиная
  • 4 спальни
  • кабинет-спальня
  • 3 гардеробные
  • 4 санузла
  • прихожая
  • холл
  • террасы
Описание

Проект создан финской архитектурно-строительной компанией.
В основе — 100-летний опыт, европейские стандарты качества и инженерная точность, доведённая до совершенства. Автор проекта — итальянский архитектор с мировым именем Giuseppe Arnone. Его творческая философия — создавать не просто дома, а архитектурные произведения, наполненные светом, дыханием места
и многовековым духом Италии. Итальянский стиль интерьера: дизайн и комплектация разработаны итальянским архитектором Fabiano Vidussi.
Одноэтажный дом премиум-класса в коттеджном поселке Gorki Lake был спроектирован с использованием принципов теневого проектирования и глубокого анализа природного контекста: архитектором были изучены рельеф, климат, метеоданные, роза ветров и траектория движения солнца.
Такой подход позволяет не просто вписать здание в ландшафт, а добиться максимального комфорта при минимальных затратах энергии.

Участок и коммуникации
Поселок
Удаленность от МКАД
18 км
Площадь участка
13 соток
Деревья
Крупномеры
Ландшафтные работы
Дорогие
Водопровод
Централизовано
Канализация
Централизовано
Газ
Есть

Описание места

490 000 000
Участок
13 соток
Площадь дома
450 м2 (Под ключ)
Материал
Блоки
Спальни
5 шт.
Санузел
4 шт.
Гараж
на 2 автомобиля
Водопровод
Централизовано
Канализация
Централизовано
Газ
Есть
Деревья
Крупномеры
Более подробную информацию можно узнать по телефону
+7 (495) 788 77 88
Похожие предложения
304 000 000 ₽
ID 16653
Дом
Поселок: Горки Лэйк
18 км от МКАД, Рублево-Успенское
Участок
11 соток
Площадь
529 м2
Спальни
4 Шт.
350 000 000 ₽
ID 16654
Дом
Поселок: Горки Лэйк
18 км от МКАД, Рублево-Успенское
Участок
13 соток
Площадь
377 м2
Спальни
3 Шт.
390 000 000 ₽
ID 16656
Дом
Поселок: Горки Лэйк
18 км от МКАД, Рублево-Успенское
Участок
17 соток
Площадь
360 м2
Спальни
4 Шт.
480 000 000 ₽
ID 16658
Дом
Поселок: Горки Лэйк
18 км от МКАД, Рублево-Успенское
Участок
11 соток
Площадь
642 м2
Спальни
3 Шт.
390 000 000 ₽
ID 18884
Дом
Поселок: Горки Лэйк
18 км от МКАД, Рублево-Успенское
Участок
12 соток
Площадь
440 м2
Спальни
4 Шт.
280 000 000 ₽
ID 18336
Дом
Поселок: Горки Лэйк
18 км от МКАД, Рублево-Успенское
Участок
13 соток
Площадь
377 м2
Спальни
4 Шт.
лимит символов – 500
Раздел
Тип сделки
лимит символов – 500