Продается дом, 1046 кв.м, с участком 31 соток, ID 18665

Коттеджный поселок «Созвездие»
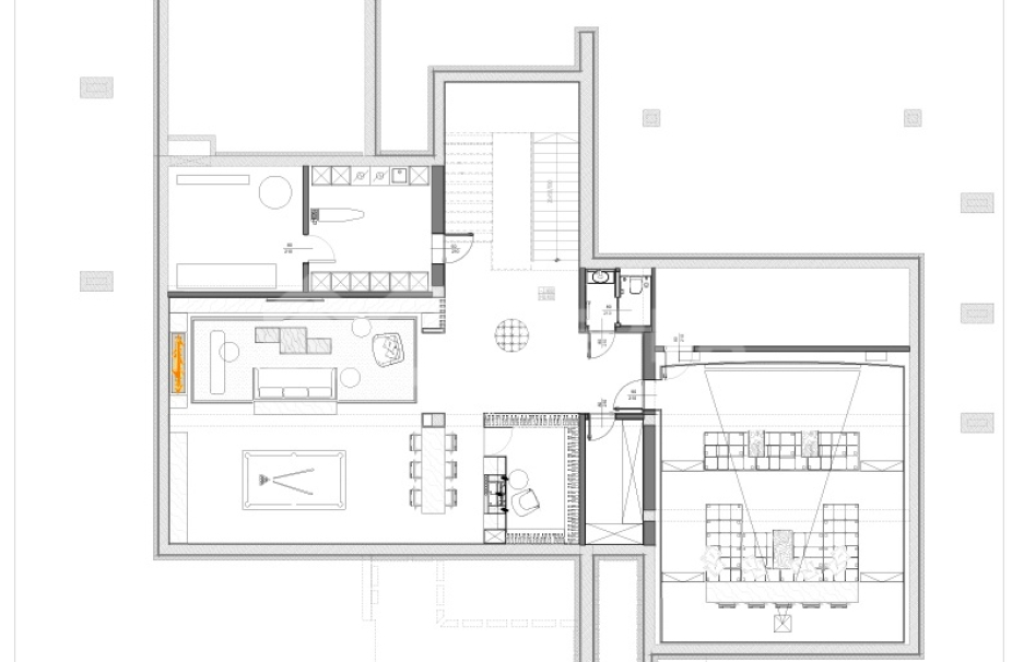
  • домашний кинотеатр
  • зона отдыха с бильярдом и баром
  • постирочная
  • санузел
  • помещения для хранения
  • гостиная
  • кухня-столовая с каминной зоной и выходом на террасу
  • рабочая кухня с кладовой
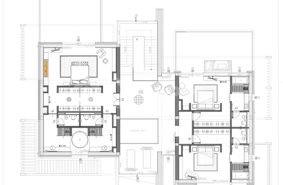
  • гостевая спальня с ванной комнатой
  • гардеробной и выходом на террасу
  • гостевой санузел
  • гардероб
  • холл
  • мастер-спальня с большой ванной комнатой
  • 2-мя гардеробными
  • 2 спальни с гардеробными и ванными комнатами (все спальни имеют выходы на балконы)
Описание

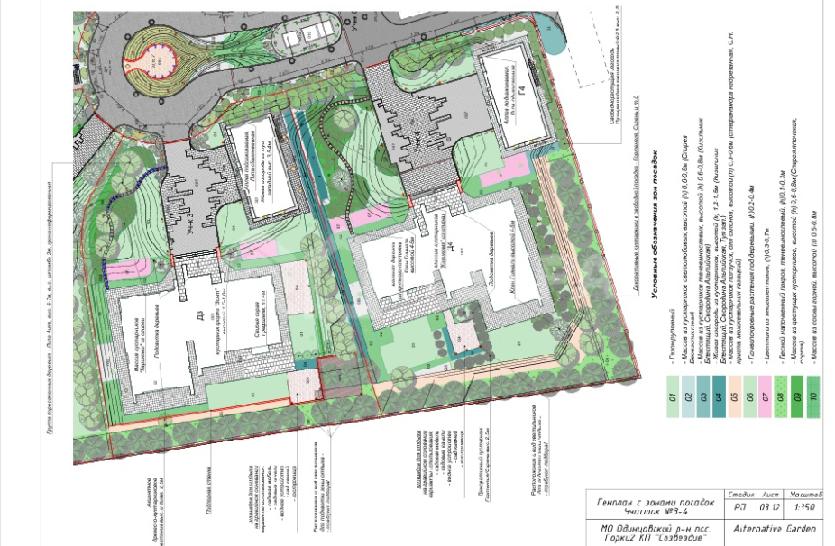
Новый, современный поселок Созвездие на Рублево-Успенском шоссе!
Клубный поселок рассчитан на 5 вилл с собственными СПА-комплексами (в зависмости от проекта), гостевыми домами и отдельно стоящими гаражами, в которых расположились аппартаменты для персонала.
Абсолютно новый современный дом 1037 м2 под отделку расположен на приватном участке 27 соток.
На участке расположен отдельно стоящий гараж с квартирой для персонала (288 м2):
1 этаж: гараж на 3 м/м, санузел, котельная;
2 этаж: кухня, 4 комнаты, ванная комната.

Участок и коммуникации
Поселок
Удаленность от МКАД
15 км
Площадь участка
31 сотка
Деревья
Крупномеры
Дополнительные постройки
Гараж с квартирой для персонала
Ландшафтные работы
Дорогие
Водопровод
Централизовано
Канализация
Централизовано
Газ
Есть
700 000 000
Участок
31 сотка
Площадь дома
1046 м2 (Под отделку)
Материал
Кирпич
Спальни
4 шт.
Санузел
6 шт.
Гараж
на 3 автомобиля
Водопровод
Централизовано
Канализация
Централизовано
Газ
Есть
Деревья
Крупномеры
Более подробную информацию можно узнать по телефону
+7 (495) 788 77 88
Похожие предложения
68 444 200 ₽
ID 2752
Дом
Поселок: Лесной Простор-3
21 км от МКАД, Рублево-Успенское
Участок
17 соток
Площадь
410 м2
Спальни
3 Шт.
По запросу
ID 5058
Участок
34 соток
Площадь
600 м2
Спальни
4 Шт.
100 000 000 ₽
ID 5326
Дом
Поселок: Пруды НП
17 км от МКАД, Рублево-Успенское
Участок
15 соток
Площадь
340 м2
Спальни
3 Шт.
$ 2 260 000
ID 5560
Дом
Поселок: Надежда ДНТ
28 км от МКАД, Рублево-Успенское
Участок
44 соток
Площадь
800 м2
Спальни
3 Шт.
$ 3 600 000
ID 6288
Дом
Поселок: Шульгино
7 км от МКАД, Рублево-Успенское
Участок
24 соток
Площадь
1207 м2
Спальни
5 Шт.
$ 2 200 000
ID 6332
Дом
Поселок: Подушкино ТСЖ
8 км от МКАД, Рублево-Успенское
Участок
13 соток
Площадь
800 м2
Спальни
4 Шт.
лимит символов – 500
Раздел
Тип сделки
лимит символов – 500