Продается дом, 307 кв.м, с участком 10 соток, ID 18474

Коттеджный поселок «Миллениум парк»
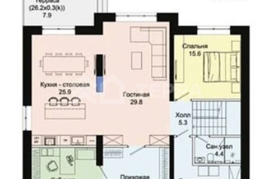
  • гостиная
  • кухня-столовая с выходом на террасу
  • кабинет
  • спальня
  • ванная комната
  • котельная-постирочная
  • холл
  • Мастер блок: спальня, гардеробная, две террасы
  • две спальни
  • ванная комната
  • холл
Описание

Двухэтажный коттедж 307 кв.м по проекту «Марсель» в КП Миллениум Парк.
Это современный дом в стиле Райта, с удобной планировкой, высокими потолками 3,3 м и большими панорамными окнами — внутри всегда много света и тепла. На 2-х этажах есть все необходимое: просторный холл со столовой, кухня, кабинет, гардеробная, хозяйственные помещения, 4 спальни и 3 санузла.
Дом построен на участке правильной прямоугольной формы размером 10,7 соток. По периметру будут высажены кустарники и деревья, а основная часть территории уложена газоном и готова к идеям по благоустройству. Внешняя отделка дома будет выполнена премиальными материалами в серо-молочной гамме: натуральный песчаник, цементно-песчаная черепица, планкен.
Дом построен в новом 8-м квартале КП Миллениум Парк – в приватной части новой зоны застройки. Квартал новой очереди расположен в пяти минутах прогулки до парковых ансамблей и рукотворных каналов поселка. Их уникальный ландшафт образует ботаническая коллекция из лучших европейских и российских питомников. В ней собрано порядка 6000 лиственных деревьев, 200 бонсаев, сотни цветов и десятки растений, образующих живые изгороди.

Участок и коммуникации
Удаленность от МКАД
19 км
Площадь участка
10 соток
Деревья
Отсутствуют
Гараж
Отсутствует
Ландшафтные работы
Отсутствуют
Водопровод
Централизовано
Канализация
Централизовано
Газ
Есть
Электричество
15 кВт.

Описание места

125 000 000
19 км от МКАД, Новорижское шоссе
Участок
10 соток
Площадь дома
307 м2 (Под отделку)
Материал
Кирпич
Спальни
4 шт.
Санузел
3 шт.
Гараж
Отсутствует
Водопровод
Централизовано
Канализация
Централизовано
Газ
Есть
Деревья
Отсутствуют
Более подробную информацию можно узнать по телефону
+7 (495) 788 77 88
Похожие предложения
275 000 000 ₽
ID 16439
Дом
Поселок: Миллениум парк
19 км от МКАД, Новорижское
Участок
28 соток
Площадь
780 м2
Спальни
4 Шт.
$ 8 000 000
ID 17006
Дом
Поселок: Миллениум парк
19 км от МКАД, Новорижское
Участок
31 соток
Площадь
800 м2
Спальни
5 Шт.
750 000 000 ₽
ID 16509
Дом
Поселок: Миллениум парк
19 км от МКАД, Новорижское
Участок
23 соток
Площадь
961 м2
Спальни
5 Шт.
$ 5 700 000
ID 16549
Дом
Поселок: Миллениум парк
19 км от МКАД, Новорижское
Участок
25 соток
Площадь
900 м2
Спальни
5 Шт.
450 000 000 ₽
ID 17278
Дом
Поселок: Миллениум парк
19 км от МКАД, Новорижское
Участок
25 соток
Площадь
990 м2
Спальни
6 Шт.
565 000 000 ₽
ID 17576
Дом
Поселок: Миллениум парк
19 км от МКАД, Новорижское
Участок
19 соток
Площадь
1200 м2
Спальни
5 Шт.
лимит символов – 500
Раздел
Тип сделки
лимит символов – 500